ID: 107577 Последние изменения: 19.02.2026.
На аренду предлагаются складские/производственные помещения класса А в логистическом парке, расположенном в легкодоступном и хорошо просматриваемом с точки зрения автомобильного транспорта месте – на обочине трассы А7 в направлении Бауски, всего в 5 км от центра Риги.
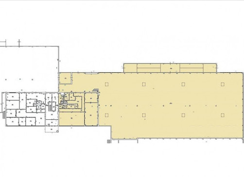
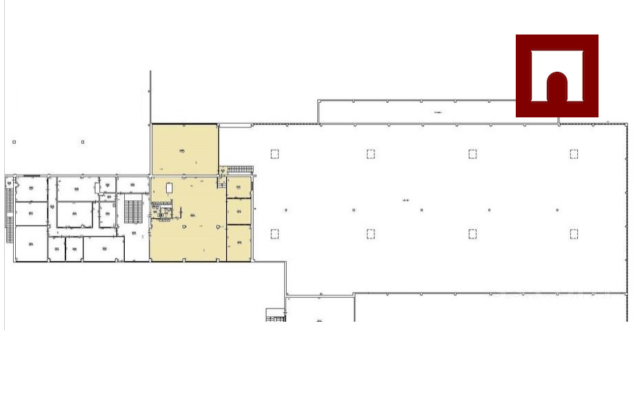
Предлагаемые помещения имеют общую площадь 2256 м2, во всех помещениях – гладкие промышленные бетонные полы, высота потолков 9 м. Имеется высоковольтное электроснабжение, водоснабжение и канализация. Для погрузки/разгрузки грузов построены 2 пандуса, а также два въездных ворот на уровне улицы размером 4,2 м x 4,2 м. Помимо арендной платы, арендатор должен оплачивать коммунальные услуги и плату за управление в размере 0,80 евро/м2.
Помимо складских помещений, предлагаются также офисные/подсобные помещения общей площадью 500 кв.м. Также сдаются в аренду офисные помещения (офисы, столовая, раздевалки, зона отдыха), условия аренды которых оговариваются отдельно, поскольку они частично соединены со складскими помещениями. Арендная плата за офисные помещения составляет 6,00 евро/м2 + 1,20 евро/м2 плата за управление.
Помещения оборудованы системой противопожарной защиты с гидрантами, системой вентиляции, а также газовым отоплением с воздухонагревателями. При необходимости можно приобрести кондиционеры у предыдущего арендатора. Благодаря надлежащей теплоизоляции здания и системе воздухообмена, расходы на отопление относительно низкие.
Территория логистического парка огорожена, для сотрудников и клиентов имеются бесплатные парковочные места.
Если у вас возникнут вопросы, пожалуйста, свяжитесь со мной.

Pаспечатать
Поделиться
Задай вопрос!