ID: 107518 Последние изменения: 31.10.2025.
						Commercial premises with land for sale in the center of Jelgava, Pasta Street 18 – an ideal place for a shop, office or service provision!
The property on offer is in a strategically advantageous location in the center of Jelgava – Pasta Street 18, where a stationery store is currently operating. The premises are suitable for a wide range of businesses.
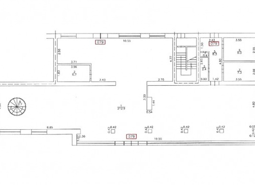
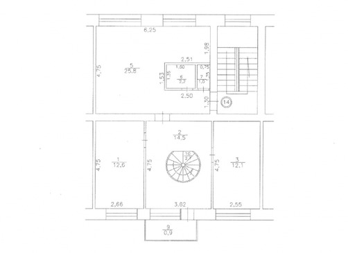
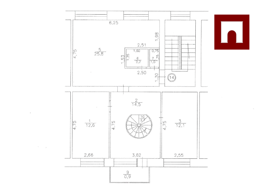
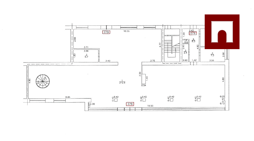
Total area of the premises:
1st floor – 249.7 m² (spacious sales hall with high ceilings, storage);
2nd floor – 71.8 m² (offices or storage, can be adapted for living or expand commercial space).
Total: 321.5 m²
Features and advantages:
+ Convenient entrance from both the street and the yard;
+ Land owned;
+ 2 bathrooms (one on each floor);
+ Electricity, water, sewage, gas are connected;
+ Possibility to connect an alternative heating system;
+ 3 separate land registers (for 1st floor commercial premises, 2nd floor apartment and land plot);
+ Excellent visibility from the street - suitable for a company with a flow of customers.
Potential uses:
These premises are suitable for both retail and service provision or office needs. Among the possible business areas:
+ Retail: shop, specialized goods outlet, showroom, salon
+ Public catering: cafe, restaurant, canteen, pastry shop, fast food outlet
+ Beauty and health: hairdressing salon, beauty salon, massage parlor, SPA, tattoo parlor
+ Medicine: family doctor's practice, dentistry, physiotherapy, diagnostic office, private doctorate
+ Education and training: training center, language school, child development center, private kindergarten
+ Service sector: insurance, legal services, accounting, consulting office
+ IT and offices: coworking space, IT company office, start-up company
+ Warehouse or logistics point
+ Creation of residential premises on the 2nd floor (after changing the function)
Location:
+ Good pedestrian and car flow;
+ Nearby shops, schools, public institutions, Jelgavas Kultūras nams;
+ Good access to public transport (bus stop at the door).					
 
																		
								 
																		
								 
																		
								 
																		
								 
																		
								 
																		
								 
																		
								 
																		
								 
																		
								 
																		
								 
																		
								 
																		
								 
																		
								 
																		
								 
																		
								 
																		
								 
																		
								 
																		
								 
																		
								 
																		
								 
																		
								 
																		
								 
																		
								 
																		
								 
																		
								 
																		
								 
																		
								 
																		
								 
																		
								
 Pаспечатать
  Pаспечатать Поделиться
 Поделиться Задай вопрос!
 Задай вопрос!