+371 6736 5555

Pasta iela 18 390 000 EUR

Jelgava, / Pārdod tirdzniecības telpas 1 213.06 EUR / m2

ID: 107503 Izmainīts: 16.10.2025.

Pārdod tirdzniecības telpas Jelgavā!

Pārdod komercobjektu Jelgavas centrā – Pasta ielā 18A.

Ēka atrodas aktīvā tirdzniecības zonā ar gājēju un transporta plūsmu, ideāli piemērota veikalam, salonam, birojam, ēdināšanas vai pakalpojumu uzņēmumam.

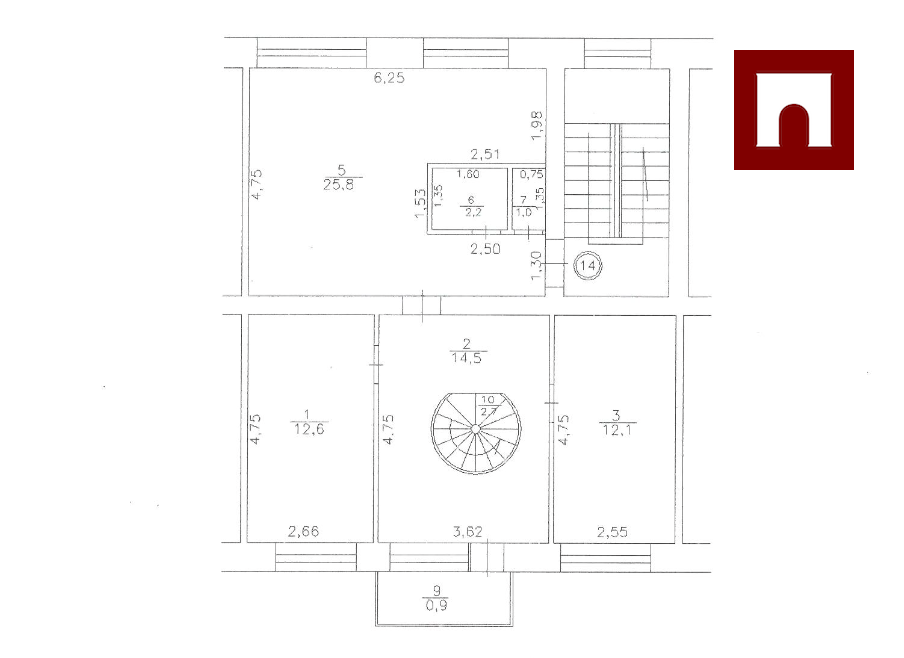
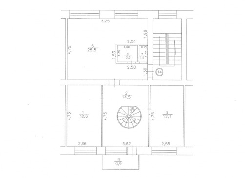
+ Kopējā telpu platība: 321,5 m²
+ Zemes gabals: 192 m² (īpašumā)

Plānojums:
1. stāvs: plašas pārdošanas zāles ar labu ielas redzamību un atsevišķu ieeju no fasādes un pagalma;
2. stāvs: biroja un administratīvās telpas, piemērotas personālam vai klientu apkalpošanai.

Ēkai ir visas nepieciešamās komunikācijas (elektrība, ūdens, kanalizācija, gāze) un ērta piekļuve gan kājāmgājējiem, gan autotransportam. Blakus iespējama stāvvieta klientiem.

Priekšrocības:
+ Stratēģiski izdevīga atrašanās vieta – Jelgavas centrs
+ Laba redzamība no ielas
+ Savs zemes gabals
+ Piemērots dažādiem komercdarbības veidiem

Darījuma veids: Pārdod
Īpašuma tips: Tirdzniecības telpas
Platība (m2): 322
Stāvu skaits: 2
- Internets
- Optiskais internets
- Kondicionētājs
- Balkons
- Autostāvvieta
Uģis Pumpurs
Nekustamo īpašumu aģents Mobilais: +371 2868 8666
E-pasts: ugis.pumpurs@arcoreal.lv Apskatīt profilu >
* atzīmētie lauki ir aizpildāmi obligāti!

Karte



Jaunākie piedāvājumi

Lasīt vairāk >
Pārdod dzīvokli
3 ist., 7 no 7 st., 94 m2
Rīga, Klīversala
515 000 EUR
Lasīt vairāk >
Pārdod dzīvokli
2 ist., 7 no 7 st., 74 m2
Rīga, Klīversala
315 000 EUR
Lasīt vairāk >
Pārdod dzīvokli
3 ist., 7 no 7 st., 123 m2
Rīga, Klīversala
558 000 EUR
Lasīt vairāk >
Pārdod māju
6 ist., 2 st., 315 m2
Tukuma novads,
700 000 EUR
X

Nesen apskatītie objekti

&laqo; »
X

Pārdot vai iznomāt objektu