ID: 107486 Izmainīts: 19.11.2025.
Blue Marine projekts saistīts ar Klīversalas pussalas īpašo šarmu. Nosaukums atspoguļo šeit esošo romantisko Vidusjūras reģiona atmosfēru – saulaino pussalu, ko ieskauj Āgenskalna līcis, Daugava un jūras tuvums. Turklāt arī vēsturiski Klīversalas pussala bija saistīta gan ar jūrniekiem un kuģiem, gan arī tirdzniecības loģistiku pa ūdens ceļiem.
Blue Marine ir nākamā dzīvojamā ēka Klīversalas kvartālā, kas veidojas par vienotu dzīves vidi, kurā ir harmoniski apvienots vēsturiskais raksturs, mūsdienīga arhitektūra un pārdomāta teritorijas ainava. Projekta atrašanās dabas ieskautā vietā pašā Daugavas Āgenskalna līča krastā un parka tuvumā radīs īpašu mierpilnu ikdienas sajūtu.
Arī daudzdzīvokļu ēkas Blue Marine interjera apdare ir izvēlēta balstoties uz sinerģiju starp dabu un pilsētu, sniedzot estētisku baudījumu un komfortablus dzīves apstākļus.
Telpu nokrāsa ļaus lieliski izcelt dažāda stila elementus, mēbeles un mākslas priekšmetus katrai gaumei.
Izvelētā santehnika un vannas istabu elegantais aprīkojums no pieredzes bagātiem Eiropas ražotājiem, radīs patiesi ērtu un harmonisku atmosfēru Jūsu ikdienas solī.
Unikālā atrašanās vieta zaļā vidē un risinājumi, kas izstrādāti, lai nodrošinātu ēkas iedzīvotājiem prestižu un ilgtspējīgu dzīves vidi, padara Blue Marine par vērtīgu ilgtermiņa ieguldījumu.
⚘ Tiek piedāvāti gan studio tipa, gan arī 1-4 guļamistabu dzīvokļi
⚘ Katrā dzīvoklī ir ar balkons vai terase
⚘ Dzīvokļos paredzēta zemgrīdas apkure ar ūdens cirkulāciju
⚘ Dzīvokļos paredzēta mehāniskā ventilācija ar rekuperāciju
⚘ Individuāli skaitītāji apkures, elektrības un ūdens patēriņa noteikšanai ar attālinātu rādītāju nolasīšanu
⚘ A klases energoefektivitāte
⚘ Ēkas un teritorijas apsardze un administrators
⚘ Pazemes autostāvvieta un individuālas noliktavu telpas
⚘ Koplietosanas novietne bērnu ratiņiem un velosipēdiem
⚘ Motorjahtu piestātne
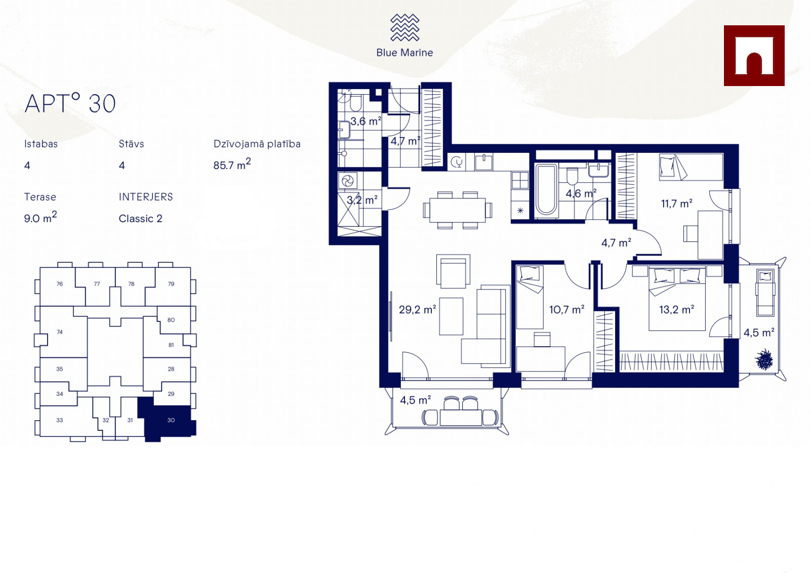
Dzīvojamā platība no 38.20 līdz 210.40 m2
Pircējiem būs iespējams mainīt dzīvokļu plānojumu vai veikt vairāku dzīvokļu apvienošanu, ja būs vēlme iegādāties īpašumu ar plašāku dzīvojamo platību.
Būvniecība tiks uzsākta līdz 31/07/2025 un ēka nodota ekspluatācijā 2027.gada pavasarī.

Izdrukāt
Nosūtīt uz e-pastu
Uzdod savu jautājumu