ID: 107427 Izmainīts: 24.11.2025.
Pārdod gaišu, plašu 3 istabu dzīvokli jaunajā projektā Salaspilī, Birzes ielā 1.
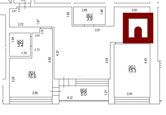
Sakarā ar dzīvesvietas maiņu tiek pārdots 79,6 m² dzīvoklis ar diviem sanmezgliem un lodžiju. Cenā iekļauta autostāvvieta, 7000 EUR. Papildus ir iespēja iegādāties slēgtu garāžu ar automātiski paceļamiem vārtiem ēkas pirmajā stāvā.
Īpašums atrodas modernā piecstāvu ēkā, kas nodota ekspluatācijā 2023. gadā, dzīvoklis izvietots 2. stāvā, ēkā ir lifts. Dzīvoklim ir pārdomāts un funkcionāls plānojums, divas izolētas guļamistabas, divi atsevišķi sanmezgli, viens ar dušu, otrs ar vannu, lodžija ar izeju gan no viesistabas, gan no guļamistabas, kā arī viesistaba apvienota ar virtuvi. Virtuvē ir iebūvēta kvalitatīva iekārta ar visu nepieciešamo tehniku, tvaika nosūcēju, cepeškrāsni, plīts virsmu, trauku mazgājamo mašīnu, šī tehnika iekļauta cenā.
Dzīvoklis ir aprīkots arī ar kvalitatīvām mēbelēm, kuras iespējams iegādāties par papildu samaksu.
Ēkā ir gāzes apkure, dzīvoklis ar individuāli regulējamiem radiatoriem un atsevišķu siltuma skaitītāju, kas nodrošina iespēju kontrolēt izmaksas. Papildus komfortam abos sanmezglos ierīkotas elektriski apsildāmas grīdas.
Pieguļošā teritorija ir labiekārtota un apzaļumota, ar nožogotu bērnu laukumiņu, bruģētiem celiņiem, apgaismojumu un soliņiem. Tuvumā atrodas parks, plaša zaļā zona, bērnudārzi, skolas, veikali, kā arī sporta centrs ar baseinu tikai dažu minūšu attālumā. Sabiedriskā transporta kustība ir ērta, līdz Salaspils centram tikai 5 minūšu brauciens, bet aptuveni 10 minūšu gājienā atrodas dzelzceļa stacija, no kuras ātri un bez sastrēgumiem iespējams nokļūt līdz Rīgas centram.
Papildu informācijai vai lai vienotos par apskates laiku, lūdzu, sazinieties ar mani!

Izdrukāt
Nosūtīt uz e-pastu
Uzdod savu jautājumu